Projects and Clients
Selected work across residential, commercial, and modular builds
Delivering Buildable Detail Across Every Project
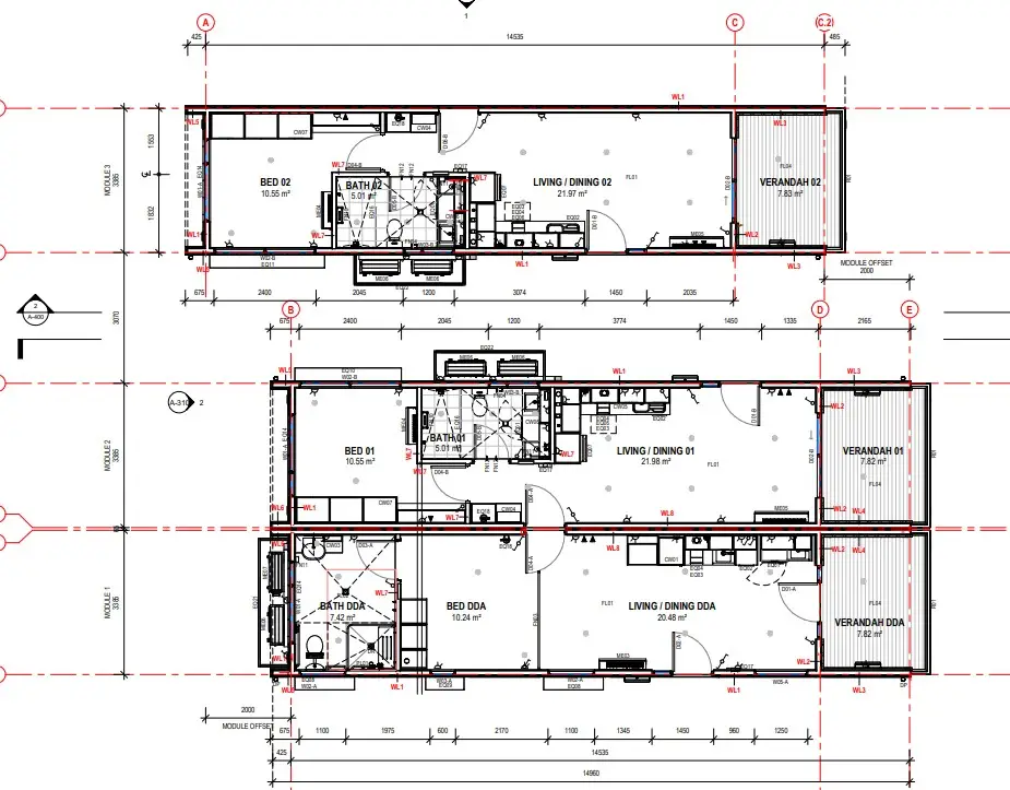
Residential
Detailed framing for homes, duplexes, and architect-designed residential builds.
Commercial
Detailing for schools, aged care, commercial buildings, and large-scale developments.
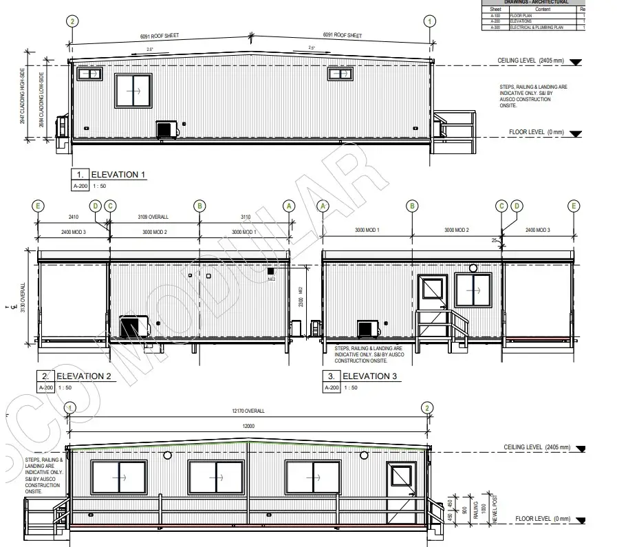
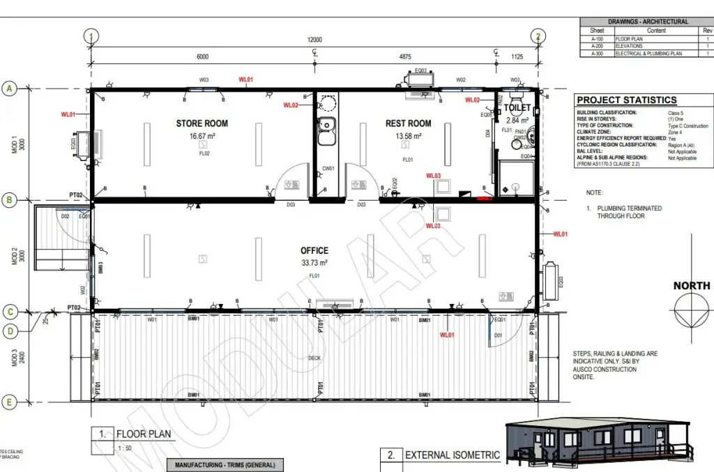
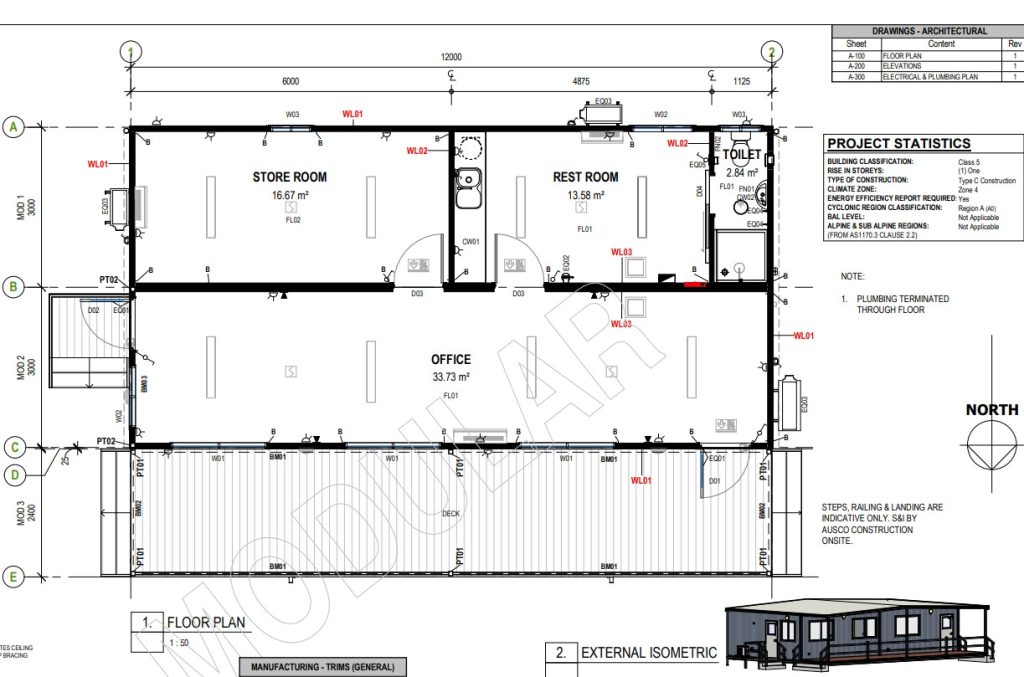
Modular
Production-ready models for efficient offsite manufacturing and streamlined assembly.

9 Ivy Street, Brisbane
Architectural House

Springfield School Hall
Queensland Education

Sporting Club
Architectural Drawings
Clients & Project Experience Across NZ, AU & Beyond
Our work spans residential homes, large-scale commercial builds, and modular production projects across Australia, New Zealand, the South Pacific, and Asia.
From single dwellings to multi-level architect-designed builds and complex commercial developments, we deliver build-ready detailing that supports real construction outcomes.

9 Ivy Street, Brisbane
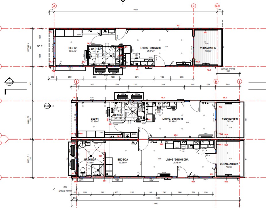
Floor Plans

Springfield School Hall
Queensland Education

Sporting Club Office
Floor Plans
Selected Clients
Geotruss, Ausco Modular, Delfin Homes, Nusteel, Cavalier Homes, Builtex Design, Weball (Sydney), Oz-Cover, Living Design, South East Steel Framing
Pacific Drafting, Kurrajong Steel Homes, Indigo Homes, 21st Century Steel Homes, Cerbis Steel Frame & Truss (NT), Metframe Roofing & Metal Building Systems (Fiji)
Varsity Lakes Delfin Project, Coomera Waters, Civic Queensland, Civic Steel Homes, Metroll Pty Ltd (Brisbane, QLD), Stoddarts Steel House Frames
Project Highlights
Burpengary Secondary State, Springfield State High School, Riverwalk Robina, Victoria Pt Retirement Care, Coordination with ASK Homes
Khan Residence, TAF Group Construction (projects Australia wide), Ivy Street Residence, Wholesale Building Solutions Pty Ltd (Gympie), Currumbin School
Rockhampton Retirement Resort, Wilson Creek Steel Frames, Kylin Constructions (Stretton) Host of Owner/Builders

Monterey Designs
House Designs

25 Arthur St Coffs Harbour
Apartment Building

Health Service Accommodation
Building Floor Plans
Project Scope & Delivery
Each project reflects practical, buildable detailing across residential, commercial, and modular construction.
From early design through to production-ready outputs, every model is developed to support efficient fabrication, coordination, and on-site installation.

Victoria PT Retirement
Accuracy That Carries Through to Construction
Our detailing is developed with construction in mind—ensuring every element is practical, coordinated, and ready for fabrication.
We focus on delivering models that reduce rework, streamline production, and support efficient installation on site.